Attraktive Gewerbefläche mit vielseitigen Nutzungsmöglichkeiten in der Freiimfelder Straße
Objektbeschreibung
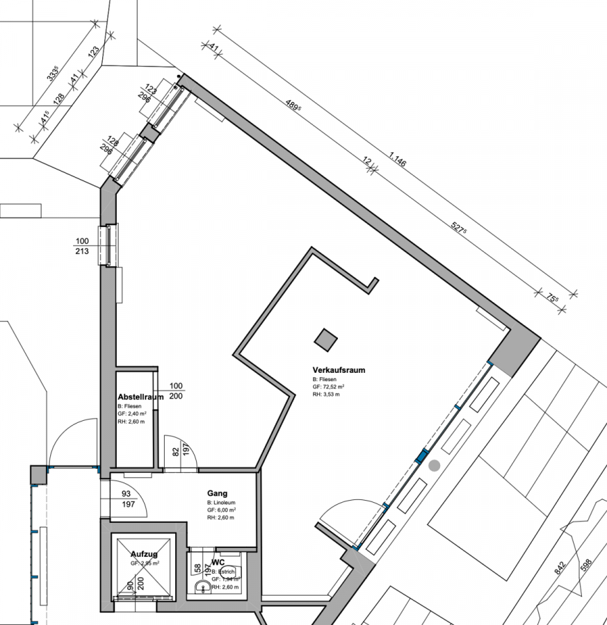
In der Freiimfelder Straße 39 in Halle (Saale) steht eine gepflegte Gewerbefläche mit ca. 83 m² zur Vermietung bereit. Die Einheit befindet sich in einem soliden und funktionalen Zustand, ist vollständig gefliest und überzeugt durch ihre großzügige Aufteilung.
Die Fläche gliedert sich in zwei Bereiche:
Vorderer Bereich (Eingang): Heller, freundlicher Raum mit Schaufensterfront – ideal für die Präsentation von Waren oder als Verkaufsraum.
Hinterer Bereich: Optimal nutzbar als Lager, Büro oder Werkstattbereich – flexibel und praktisch zugleich.
Ergänzt wird die Gewerbefläche durch ein Mitarbeiter-WC, eine kleine Küche sowie einen Abstellraum, die zusätzlichen Komfort im Arbeitsalltag bieten.
Die Lage in der Freiimfelder Straße zeichnet sich durch ihre günstige Anbindung und gute Sichtbarkeit aus. Dank der Schaufensterfront ist die Fläche auch für laufende Kundschaft attraktiv. Besonders geeignet wäre die Einheit beispielsweise für einen Lotto-Laden, ein kleines Büro oder ein kombiniertes Verkaufs- und Servicegeschäft.
Ausstattung
- ca. 83 m² Gesamtfläche
- gefliester Boden in allen Bereichen
- großzügiger Verkaufs-/Eingangsbereich mit Schaufensterfront
- separater hinterer Bereich (z. B. als Büro oder Lager nutzbar)
- Mitarbeiter-WC
- kleine Küche
- zusätzlicher Abstellraum
- gute Sichtlage in der Freiimfelder Straße
Sonstige Informationen
Es liegt ein Energiebedarfsausweis vor.
Dieser ist gültig bis 12.9.2028.
Endenergiebedarf beträgt 70.80 kwh/(m²*a).
Wesentlicher Energieträger der Heizung ist Erdgas schwer.
Das Baujahr des Objekts lt. Energieausweis ist 1999.
Die Energieeffizienzklasse ist B.
HINWEIS: Wir bitten Sie, unsere allgemeinen Geschäftsbedingungen und die gemäß neuen EU-Verbrauchrichtlinien seit 13.06.2014 geltende Widerrufsbelehrung zu beachten. Wünschen Sie weitere Unterlagen, Informationen oder einen Besichtigungstermin bereits innerhalb der 14 tägigen Widerrufsfrist, bitten wir Sie dies ausdrücklich zu erklären.
Gerne stehen wir Ihnen auch für unsere amtlich anerkannte, professionelle 3A Verkehrswerteinschätzung inkl. Marktwertanalyse zur Verfügung. Rufen Sie uns einfach an und vereinbaren kurzfristig einen Termin!
Objektdaten
-
Objekt IDJG-1978-2025-GM
-
ObjekttypenEinzelhandel, Ladenlokal
-
AdresseFreiimfelder Straße 39
06112 Halle -
Etage0
-
Bürofläche ca.83 m²
-
Gesamtfläche ca.83 m²
-
Ladenfläche ca.83 m²
-
Verkaufsfläche ca.83 m²
-
Vermietbare Fläche ca.83 m²
-
Zimmer1
-
Gewerbeeinheiten1
-
BefeuerungGas, Zentralheizung
-
Baujahr1999
-
Zustandnach Vereinbarung
-
Verfügbar abab Sofort
-
Veroeffentlichen1
-
Veroeffentlichen1
-
Nebenkosten210 EUR
-
Mieterprovision (gewerblich)keine zusätzliche Mieterprovision
-
Kaution1.460 EUR
-
Kaltmiete730 EUR
-
Miete pro m²8,80 EUR pro m²
-
Nettokaltmiete730 EUR
-
Gesamtbelastung brutto940,00 EUR
-
Summe Miete netto730,00 EUR
-
Betriebskosten (netto)210 EUR
-
Gesamtmiete940 EUR (Heizkosten enthalten)
Energiebedarfsausweis
-
Gültig bis12.09.2028
-
Baujahr lt. Energieausweis1999
-
PrimärenergieträgerErdgas schwer
-
EnergieeffizienzklasseB
-
Endenergiebedarf70.8 kWh/(m²·a)
Exposé
Lage
Freiimfelder Straße 39, 06112 Halle (Saale)
Ausstattung
- Fahrradraum
- Fliesenboden
- Gewerblich nutzbar
Ihr Ansprechpartner
-
NameHerr Jan Gerliz
-
Firma3A Immobilien GmbH
-
AdresseHerrenstraße 20
06108 Halle -
E-Mail Zentrale
-
E-Mail Direkt
-
Tel. Zentrale
-
Tel. Durchwahl
-
Mobil
-
Fax004934520933120







