Die Suche hat ein Ende! Doppelhaushälfte,bezugsbereit-mit Garage und Sonnenterrasse in Teutschenthal
Referenz
Dieses Objekt ist zur Zeit leider nicht verfügbar.
Objektbeschreibung
Sie haben schon immer den Traum vom Bauen und einem tollen Haus für Ihre kleine Familie?
Hier müssen Sie nicht mehr bauen!!!
Wohnen und Wohlfühlen in ruhiger Nachbarschaft werden Ihnen hier ganz sicher nicht schwer fallen.
Umgeben von Grün und Ruhe können Sie künftig Wohnkomfort genießen.
Dieses Haus wurde 1999 massiv mit Garage gebaut und zwischendurch schon umfangreich modernisiert, so dass sich das Haus technisch und optisch in einem ausgezeichneten Zustand befindet.
Ruhig gelegen und umgeben von einem sehr gepflegten Grundstück mit überdachter Terrasse und einer hübschen Poolanlage bietet das neue Domizil viel Raum zur Erholung und Entspannung mit Freunden.
Beim Betreten des Hauses werden Ihnen sofort der helle und offene Eingangsbereich sowie die großzügige Raumgestaltung ins Auge fallen.
Für ganztägig optimale Lichtverhältnisse sorgen ringsum große Fensterflächen.
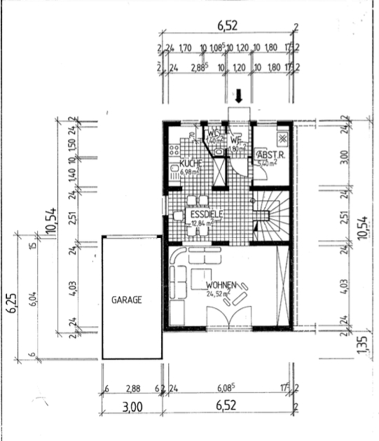
Im Erdgeschoss befinden sich das große helle Wohnzimmer , die offen gestaltete Küche mit Essbereich und neben dem Gäste-WC auch ein Hauswirtschaftsraum.
Vom Wohnzimmer aus gelangen Sie auf Ihre Sonnenterrasse mit Rundumblick in Ihren Garten.
Die Kinder lassen Sie einfach im Pool planschen und danach im Garten ordentlich austoben.
Sie werden künftig die Sommerabende auf Ihrer Terrasse und im Garten genießen und den Tag mit einer fantastischer Ruhe ausklingen lassen.
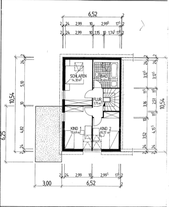
Über eine Treppe gelangen Sie in das Obergeschoss mit 3 weiteren Räumen und dem Bad . Das Bad wurde erst 2023 modernisiert und ist mit einer bodengleichen Glaswanddusche ausgestattet.
Das gesamte Grundstück umfasst 275 m², und bietet genug Platz um in Stadtnähe eine kleine Oase genießen zu können.
Die Garagenzufahrt wurde 2020 überdacht. Die Autos stehen also künftig trocken und witterungsgeschützt.
Jetzt heißt es nicht - Auf die Plätze fertig los! ...sondern Einpacken- Einziehen-Auspacken!
Ausstattung
Modernisierungen:
Heizung 2021
Dachversiegelung 2017
Fassade 2017
Bad 2023
Dachfenster 2022
Terrassendach 2020
Überdachung Garagenzufahrt 2020
Sonstige Informationen
Es liegt ein Energieverbrauchsausweis vor.
Dieser ist gültig bis 16.11.2034.
Endenergieverbrauch beträgt 92.00 kwh/(m²*a).
Wesentlicher Energieträger der Heizung ist Gas.
Das Baujahr des Objekts lt. Energieausweis ist 2021.
Die Energieeffizienzklasse ist C.
HINWEIS: Wir bitten Sie, unsere allgemeinen Geschäftsbedingungen und die gemäß neuen EU-Verbrauchrichtlinien seit 13.06.2014 geltende Widerrufsbelehrung zu beachten. Wünschen Sie weitere Unterlagen, Informationen oder einen Besichtigungstermin bereits innerhalb der 14 tägigen Widerrufsfrist, bitten wir Sie dies ausdrücklich zu erklären.
Gerne stehen wir Ihnen auch für unsere amtlich anerkannte, professionelle 3A Verkehrswerteinschätzung inkl. Marktwertanalyse zur Verfügung. Rufen Sie uns einfach an und vereinbaren kurzfristig einen Termin!































