Citywohnung mit Terrasse
Objektbeschreibung
Viel zentraler geht es nicht! Genießen Sie alle Vorzüge des abwechslungsreichen Lebens in der Innenstadt verbunden mit der Ruhe einer Dachgeschoss-Wohnung.
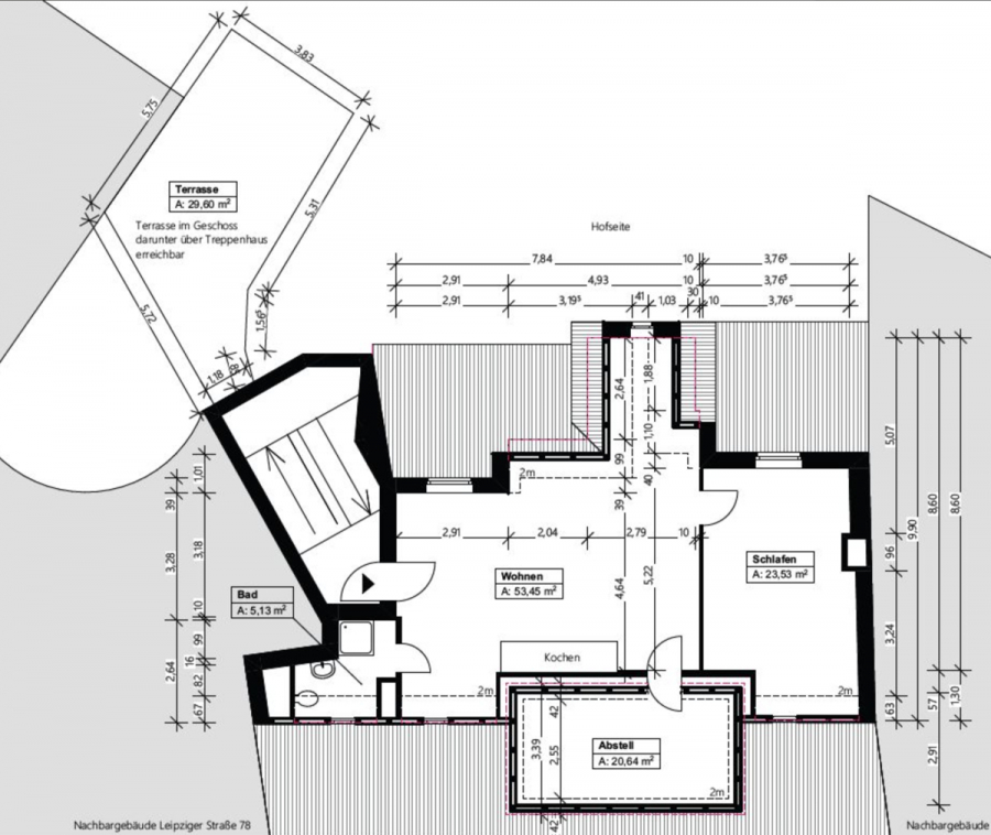
Das Herzstück der Wohnung ist der großzügige Wohnbereich, welcher problemlos Wohnlandschaft, Esstisch und Arbeitsplatz vereint – hier können Sie wohnen, arbeiten und entspannen, ganz nach Ihrem Stil.
Doch nicht nur das Wohnzimmer, auch das Schlafzimmer mit ca. 24 m² lässt keine Wünsche offen!
Ein besonderes Highlight ist die großzügige Dachterrasse mit ca. 30 m² – ideal zum Entspannen im Freien. Bitte beachten Sie, dass die Terrasse 1,5 Etagen unterhalb der Wohnung liegt und nur über das Treppenhaus erreichbar ist.
Ihr neues Tageslichtbad ist mit einer Dusche ausgestattet und verfügt über einen Waschmaschinenanschluss.
Von der Wohnung können Sie sich direkt in das Hallesche Nachtleben stürzen. Zentraler geht es gar nicht mehr!
Um das Mietangebot abzurunden, steht Ihnen zudem ein großzügiger Abstellraum zur Verfügung.
Ausstattung
- 2-Raumwohnung
- geräumiges Wohnzimmer
- Bad mit Fenster & Dusche
- großer Abstellraum
- Sonnenterrasse
Achtung: die Dachterrasse befindet sich 1,5 Etagen unter der Wohnung und ist nur über das Treppenhaus erreichbar.
Sonstige Informationen
Achtung Denkmalschutz! Kein Energieausweis erforderlich!
HINWEIS: Wir bitten Sie, unsere allgemeinen Geschäftsbedingungen und die gemäß neuen EU-Verbrauchrichtlinien seit 13.06.2014 geltende Widerrufsbelehrung zu beachten. Wünschen Sie weitere Unterlagen, Informationen oder einen Besichtigungstermin bereits innerhalb der 14 tägigen Widerrufsfrist, bitten wir Sie dies ausdrücklich zu erklären.
Gerne stehen wir Ihnen auch für unsere amtlich anerkannte, professionelle 3A Verkehrswerteinschätzung inkl. Marktwertanalyse zur Verfügung. Rufen Sie uns einfach an und vereinbaren kurzfristig einen Termin!
Objektdaten
-
Objekt IDMS-1060-2023-WM
-
ObjekttypenEtagenwohnung, Wohnung
-
AdresseLeipziger Straße 79
(Altstadt)
06108 Halle -
Wohnfläche ca.90 m²
-
Balkon-/Terrassenfläche ca.30 m²
-
Zimmer2
-
Schlafzimmer1
-
Badezimmer1
-
Terrassen1
-
BefeuerungGas, Zentralheizung
-
Baujahr1900
-
Zustandgepflegt
-
Verfügbar absofort
-
Veroeffentlichen1
-
Veroeffentlichen1
-
Nebenkosten340 EUR
-
Kaution1.432 EUR
-
Kaltmiete716 EUR
-
Miete pro m²7,96 EUR pro m²
-
Nettokaltmiete716 EUR
-
Gesamtbelastung brutto1.056,00 EUR
-
Heizkosten netto220,00 EUR
-
Summe Miete netto716,00 EUR
-
Heizkosten220 EUR (in der Gesamtmiete enthalten)
-
Betriebskosten (netto)340 EUR
-
Gesamtmiete1.056 EUR (Heizkosten enthalten)
Energieverbrauchsausweis
Exposé
Lage
Die Wohnung befindet sich in der Leipziger Straße 79, 06108 Halle.
Ausstattung
- Denkmalgeschützt
- Dusche
- Einbauküche
- Fahrradraum
- Fliesenboden
- Laminatboden
- Tageslichtbad
- Terrasse
Ihr Ansprechpartner
-
NameHerr Raffy Kalajian
-
Firma3A Immobilien GmbH
-
AdresseHerrenstraße 20
06108 Halle (Saale) -
E-Mail Zentrale
-
E-Mail Direkt
-
Tel. Zentrale
-
Tel. Durchwahl
-
Mobil
-
Fax004934520933120















